РГСН 20 м3

729600,00 руб

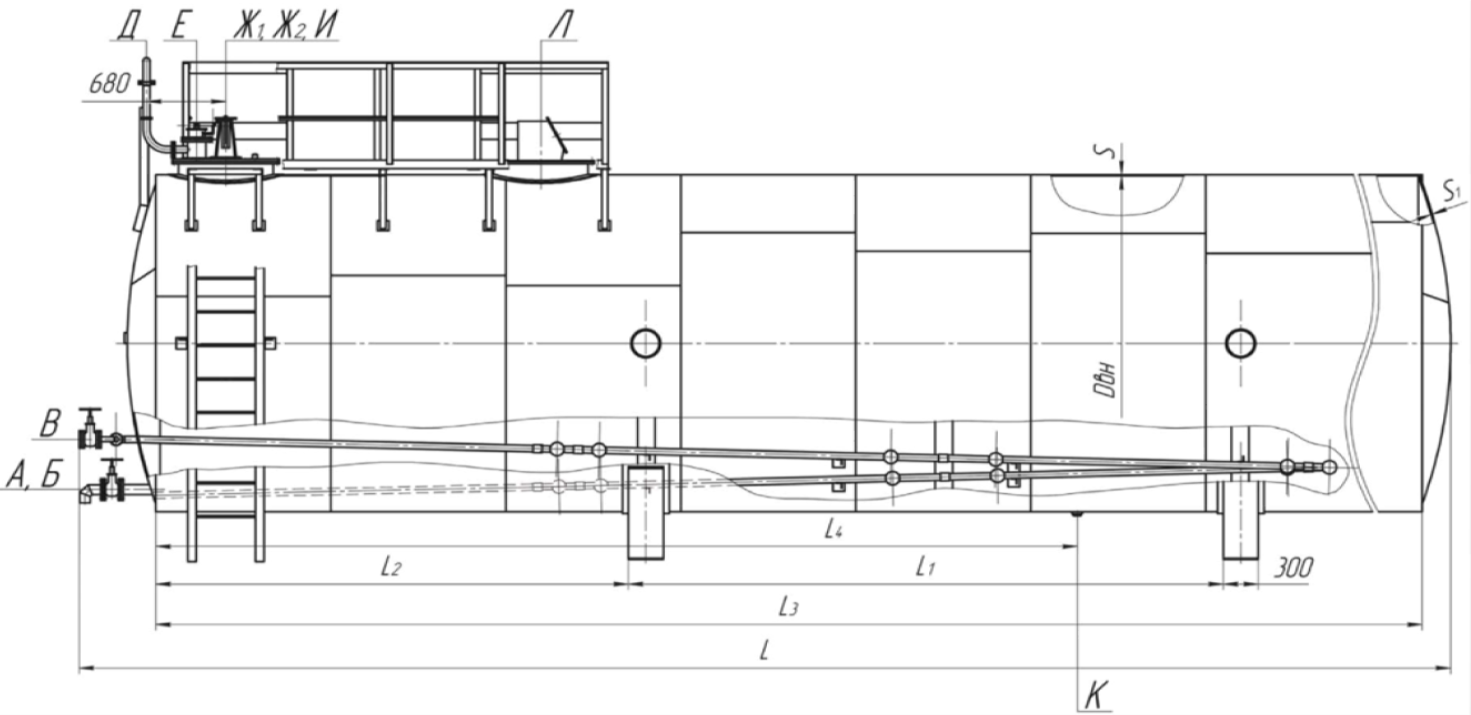
 Резервуары горизонтальные стальные наземные РГСН 20 м3

Характеристики

Значение

Номинальный объем, м3

20

Диаметр, мм

2400

Длина, мм

4500

Высота, мм

2600

Толщина стенки, мм

от 4

Марка стали

Ст3сп / 09Г2С / нерж.

Расчетное давление, МПа

0,07

Масса, кг

1920

 

Горизонтальный стальной резервуар РГСН 20 м³ (наземного исполнения) — это прочная цилиндрическая ёмкость из стали, оснащённая плоскими или коническими днищами. Установка резервуара осуществляется на железобетонный фундамент, к которому он надёжно фиксируется с помощью анкерных болтов для обеспечения устойчивости при эксплуатации.

Материал корпуса: Для районов с расчетной температурой наружного
воздуха:

  • до -40°С – Ст3сп-5;
  • ниже -40°С – 09Г2С-12.

Объемы резервуаров (м3): 1, 2, 3, 4, 5, 6, 8, 10, 12, 14, 15, 20, 25, 30, 35, 40, 45, 50, 60, 75, 80, 90, 100, 150, 200, 250, 300, 400, 500.
Промежуточные объёмы резервуаров могут быть выполнены по требованию заказчика.
Для установки технологического оборудования резервуар оборудован горловиной Ду 600, 700 или 800 с плоской крышкой.

Основная комплектация резервуара РГСН 20 м³ включает:

  1. Корпус из стали марки Ст3Сп, толщиной стенки 4 мм;
  2. Металлические опоры для устойчивого монтажа;
  3. Горловина Ду-800 с крышкой, закреплённой болтами;
  4. Рым-болты для строповки и перемещения;
  5. Набор патрубков: заливной, сливной и дыхательный;
  6. Защитное покрытие, предохраняющее металл от коррозии.

 

Мы предлагаем полный спектр услуг, включая проектирование, изготовление, доставку и монтаж резервуаров , изготовление фундаментов резервуаров , монтаж технологических линий.

 

   Наши менеджеры подскажут о важных свойствах товара, наличии на складе в г. Санкт-Петербург, о реальных сроках и способах поставки груза. Подберут оборудование и сделают расчет стоимости. Для дополнительной информации обращайтесь в офис нашей компании по электронному адресу:

azs-tehnik@yandex.ru либо по телефону +7 (812) 716-60-16, +7(965) 770-89-00.

   Доставка осуществляется по всей территории страны любыми транспортными компаниями: ТК "КИТ" Сервис, ТК "Деловые линии" и другими. Оплата транспортных расходов производится заказчиком на месте транспортной компании либо включается в стоимость оборудования.