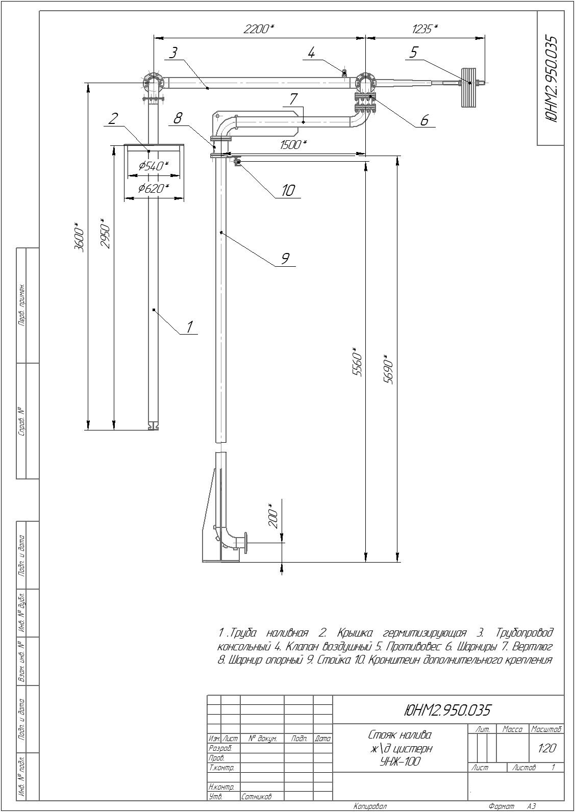
УНЖ-100 и УНЖ-80
450000,00 руб
Для обеспечения требований промышленной безопасности устройство должно быть оснащено системой управления наливом, обеспечивающей автоматическую защиту от перелива.
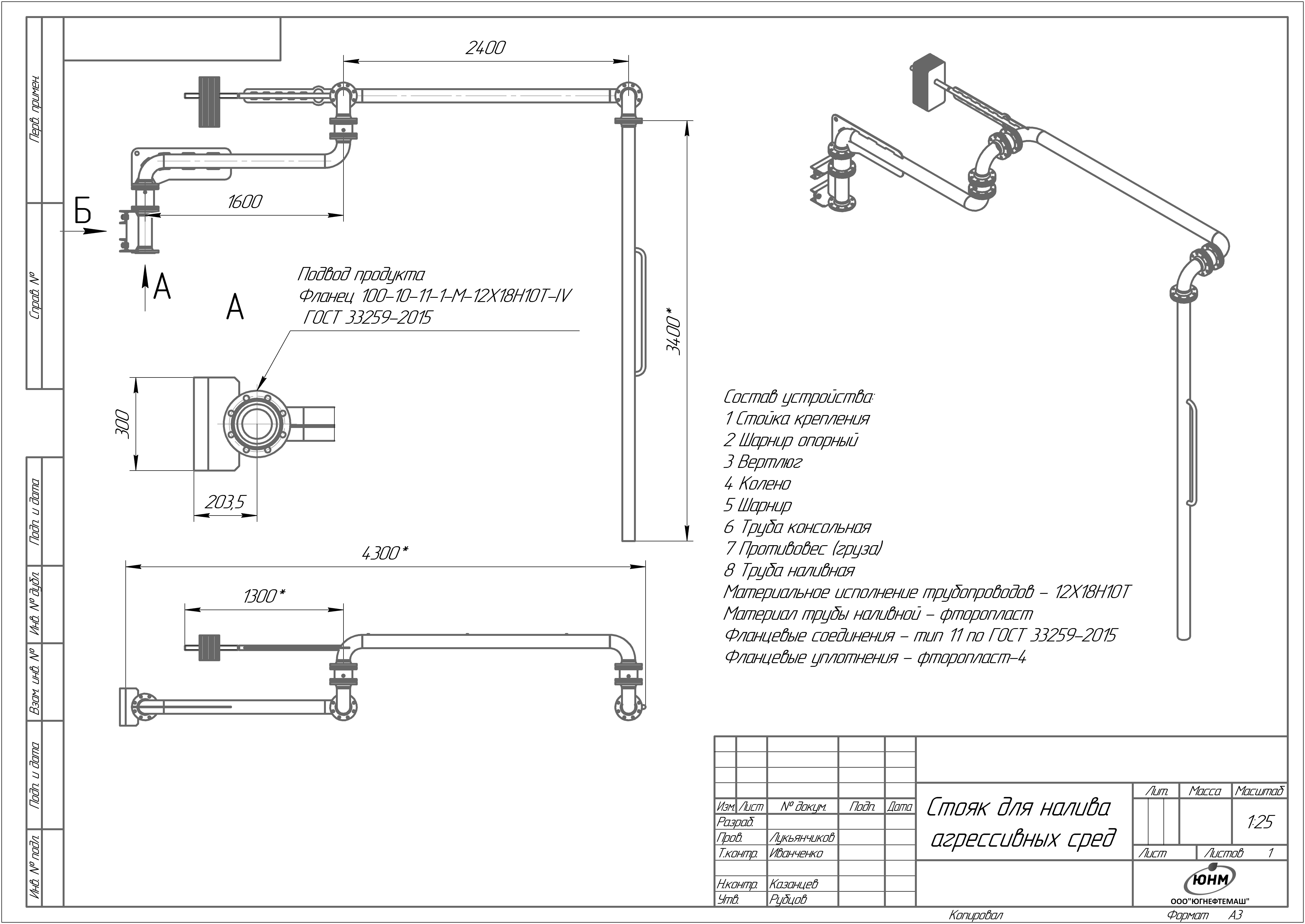
Устройство УНЖ-100, УНЖ-80 может быть использовано в нефтяной,нефтехимической, химической отраслях промышленности на объектах, связанных с верхним сливом/наливом нефти, нефтепродуктов и агрессивных в железнодорожные цистерны.
Устройство может быть использовано только для нефтепродуктов 3-го и 4-го класса опасности по ГОСТ 12.1.007-76. Устройство предназначено для эксплуатации во взрывоопасной зоне класса В-1г, с категорией взрывоопасных смесей - IIА, IIB, согласно классификации «Правила устройства электроустановок».
Климатическое исполнение У, ХЛ или УХЛ, категория размещения 1 по ГОСТ 15150.

Основные параметры и размеры приведены в таблице.
Таблица 1
|
Наименование параметра |
Обозначение изделия |
||
|
УНЖ-80 |
УНЖ-100 |
||
|
Значение параметра |
|||
|
1 Диаметр условного прохода, мм |
80 |
100 |
|
|
2 Рабочее давление среды, МПа (кгс/см2) |
1 (10) |
||
|
3 Пропускная способность, м3/час |
80-120 |
80-160 |
|
|
4 Диапазон обслуживания, м |
± 3,5 |
||
|
5 Усилие перемещения консольной части, Н, не более |
120 |
||
|
6 Усилие открытия заслонки, Н, не более |
50 |
||
|
7 Габаритные размеры (в рабочем положении) не более: |
мм |
||
|
Длина |
A |
4620 |
|
|
Ширина |
C |
930 |
|
|
Высота |
B |
3000+ |
|
|
8 Масса, кг, не более |
350 |
400 |
|
|
9 Материальное исполнение |
Ст.20/ 09Г2С/ 12Х18Н10Т |
Ст.20/ 09Г2С/ 12Х18Н10Т |
|
Устройства УНЖ-100, УНЖ-80 относятся к изделиям многократного циклического применения,восстанавливаемые, обслуживаемые, ремонтируемые (ГОСТ 27.003-90).
Комплектность
- Устройство 1шт
- Паспорт устройства ЮНМ01.04.01.02.000ПС 1шт
- Руководство по эксплуатации ЮНМ01.04.01.02.000РЭ 1шт
Примечание. Для удобства упаковки и транспортированияизделие может быть разобрано на следующие сборочные единицы и детали, сборку следует проводить согласно руководства по эксплуатации на данный тип изделия:
- Рама;
- Труба консольная;
- Наконечник наливной;
- Груза;
- Линия отвода ПВС.
ЦЕНА
- Консоль верхнего налива из жд цистерны нефти и нефтепродуктов УНЖ-100, УНЖ-80 с ручным прекращением налива и открытым наливом. Цена 450 000,00 руб
- Консоль верхнего налива в жд цистерны нефти и нефтепродуктов УНЖ-100, УНЖ-80 с автоматичексой заслонкой ДКП-80 и открытым наливом. Цена 650 000,00 руб
- Консоль верхнего налива из жд цистерны нефти и нефтепродуктов УНЖ-100, УНЖ-80 с ручным прекращением налива и открытым наливом, материал изготовления 12Х18Н10Т для агрессивных сред. Цена 1 500 000,00 руб.
- Консоль верхнего налива из жд цистерны нефти и нефтепродуктов УНЖ-100, УНЖ-80, материал изготовления 12Х18Н10Т футерованный фторопластом. Цена 2 600 000 000,00 руб.
Другие варианты исполнения УНЖ-100 Вы можете уточнить позвонив в наш офис либо написав письмо на наш электронный адрес.
Наши менеджеры подскажут о важных свойствах товара, наличии на складе в г. Санкт-Петербург, о реальных сроках и способах поставки груза. Подберут оборудование и сделают расчет стоимости. Для дополнительной информации обращайтесь в офис нашей компании по электронному адресу: azs-tehnik@yandex.ru либо по телефону +7 (812) 716-60-16, +7(965) 770-89-00.
Доставка осуществляется на территории всей страны транспортными компаниями ТК "КИТ" Сервис, ТК "Деловые линии" и другими. Оплата транспортных расходов производится заказчиком на месте транспортной компании либо включается в стоимость оборудования.

