Узел УПР
21200,00 руб
Узел подключения рециркуляции паров устанавливается на линиях рециркуляции паров резервуарного парка и предназначен для герметичного соединения паровых объёмов резервуаров и автоцистерны, а также автоматического перекрытия линии рециркуляции паров при их расстыковке. УРП-1 снабжён огнепреградителем.
Узел изготавливается для работы в окружающей среде с относительной влажностью 95% и температурой от -50°C до +50°C в климатическом исполнении УХЛ, категории размещения 5 по ГОСТ 15150-69.
Описание:
- УПР-1 снабжен огнепреградителем требование НПБ 111-98* п 62.
- УПР-1 эксплуатируется при относительной влажности до 95% и температуре от -50оС до +50оС
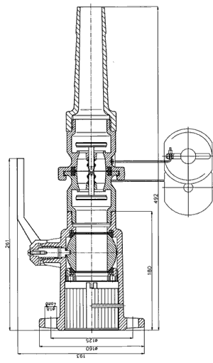
- Конструкция УПР-1 представляет собой сборную конструкцию из следующего оборудования:
- патрубка, оборудованного обратными клапанами для подключения шланга АЦ;
- быстроразъемной муфты, также оборудованной обратными клапанами;
- крана шарового, для закрытия линии рециркуляции паров;
- огнепреградителя;
- патрубка для врезки в линию рециркуляции паров резервуарного парка.
| Условный проход, Ду, мм | 40 |
| Прочность корпуса по давлению среды, МПа | 0,6 |
| Рабочий диапазон давлений, МПа | 0,015÷0,02 |
| Минимальное давление открытия, МПа | 0,01 |
| Присоединительная резьба по ГОСТ 24705 | 2" |
| Диаметр, не более, мм | 100 |
| Длина, не более, мм | 520 |
| Масса, не более, кг | 6,0 |
УСТРОЙСТВО
Узел подключения рециркуляции паров состоит из следующих основных частей:
- часть узла, являющаяся принадлежностью автоцистерны (устанавливается на паровом рукаве АЦ);
- часть узла, являющаяся принадлежностью резервуара (устанавливается на линии рециркуляции резервуара).
Присоединение одной части узла к другой производится с помощью автоматической защелки.
Корпуса обеих частей выполнены из алюминиевого сплава.
В состав обеих частей входят автоматические быстродействующие отсечные клапана.
В состав узла, относящегося к резервуару, входят огнепреградитель и шаровой кран Ду50.
При присоединении обеих частей отсечные клапана открываются, обеспечивая свободный проход паров топлива из резервуара в АЦ. Рассоединение узла приводит к закрытию отсечных клапанов и недопущению выхода паров топлива в атмосферу как из резервуара, так и из АЦ.
ЦЕНА
Узел подключения рециркуляции паров УПР ду 40. Цена 21 200,00 руб.
Узел подключения рециркуляции паров УПР ду 50. Цена 22 740,00 руб.
Узел подключения рециркуляции паров УПР ду 80. Цена 24 344,00 руб.
Наши менеджеры подскажут о важных свойствах товара, наличии на складе в г. Санкт-Петербург, о реальных сроках и способах поставки груза. Подберут оборудование и сделают расчет стоимости. Для дополнительной информации обращайтесь в офис нашей компании по электронному адресу: azs-tehnik@yandex.ru либо по телефону +7- (965) 770-89-00.
