РГСН 5М3
328320,00 руб
Наземный резервуар объемом 5 м3 - РГСН 5 М3
|
Характеристики |
Значение |
|
Номинальный объем, м3 |
5 |
|
Диаметр, мм |
2100 |
|
Длина, мм |
1500 |
|
Высота, мм |
2300 |
|
Толщина стенки, мм |
от 4 |
|
Марка стали |
Ст3сп / 09Г2С / нерж. |
|
Расчетное давление, МПа |
0,07 |
|
Масса, кг |
864 |
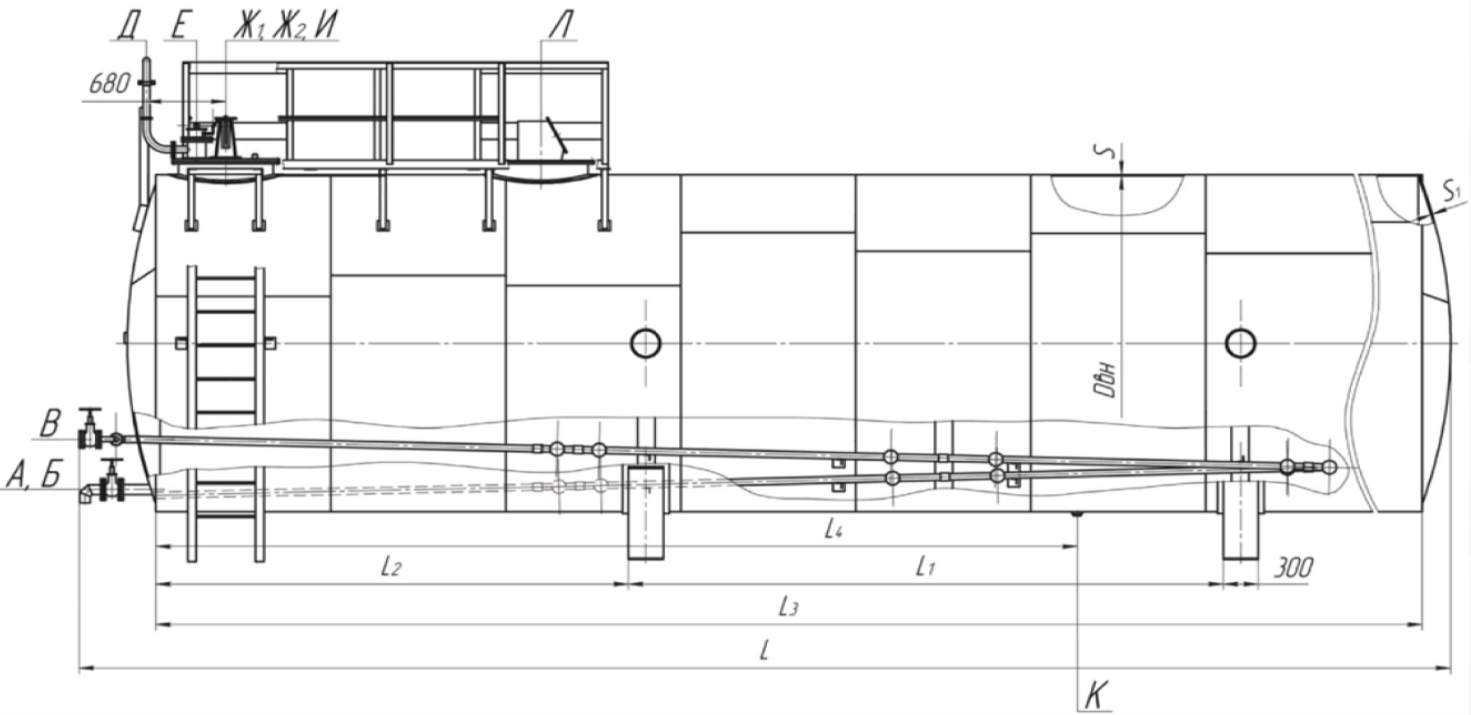
Горизонтальный стальной резервуар РГСН 5 м³ (наземного типа) — это ёмкость цилиндрической формы, изготовленная из стали, с плоскими либо коническими торцевыми днищами. Конструкция предназначена для установки на поверхности, монтируется на железобетонное основание. Для прочного крепления к фундаменту применяются анкерные болты.
Материал корпуса: Для районов с расчетной температурой наружного
воздуха:
- до -40°С – Ст3сп-5;
- ниже -40°С – 09Г2С-12.
Объемы резервуаров (м3): 1, 2, 3, 4, 5, 6, 8, 10, 12, 14, 15, 20, 25, 30, 35, 40, 45, 50, 60, 75, 80, 90, 100, 150, 200, 250, 300, 400, 500.
Промежуточные объёмы резервуаров могут быть выполнены по требованию заказчика.
Для установки технологического оборудования резервуар оборудован горловиной Ду 600, 700 или 800 с плоской крышкой.
Базовая комплектация резервуара РГСН объёмом 5 м³ включает:
- Цилиндрический корпус из стали марки Ст3Сп, толщиной 4 мм;
- Несущие металлические опоры;
- Горловина диаметром Ду-800 с болтовой крышкой;
- Рым-болты (строповочные проушины) для удобства при погрузке и разгрузке;
- Система патрубков: подводящий, отводящий и дыхательный;
- Антикоррозионное защитное покрытие внешней поверхности.